BILOCALE ALL’ASTA A CESATE

53.220 €
74,9 m²
Superficie
2
Locali
1
Camere
1
Bagni
in vendita
2 locali
Cesate
Descrizione
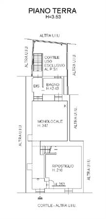
Bilocale in mezza proprietà, piano terra/seminterrato di edificio residenziale ante ‘67 nella zona centrale di Cesate (MI), a nord-ovest di Milano. Composto da soggiorno, camera da letto, bagno, balcone, ripostiglio, cantina di circa 9 mq e corte esclusiva, stabile di grado medio, condizioni buone, doppi vetri, porta blindata, riscaldamento autonomo, classe energetica G e nessuna spesa di amministrazione condominiale. Commerciali totali: 74,9 mq.

NONSOLOASTE è una società che si occupa del mercato immobiliare a 360 gradi.
Siamo specializzati in aste e stralci immobiliari e forniamo un’assistenza completa, dalla ricerca dell’immobile fino alla consegna delle chiavi. Il nostro team è composto da professionisti con esperienza ventennale nel settore immobiliare, che ti accompagneranno nell’acquisto del tuo immobile!
Inoltre, grazie alle nostre collaborazioni, potrai facilmente accedere a un mutuo al 100% con delibera prima di andare all’asta!
Devi ristrutturare? Ci pensiamo noi: avrai un prezzo agevolato e personalizzato in base alle tue esigenze!
NOI POSSIAMO DARE VITA AL TUO SOGNO ORA! NON ESITARE A CHIAMARCI: TEL. 3802487735
Caratteristiche principali
Codice:
SU4
Città:
Cesate
Categoria:
2 locali
Locali:
2
Camere:
1
Bagni:
1
Mq:
74,9
Mq Giardino:
13
Balconi:
1
Piano:
1
Anno:
1967
Classe energetica:
G
Stato Immobile:
Buono
Grado:
Medio
Posizione:
Centro
Panorama:
Vista Aperta
Orientamento:
Nord Ovest
Lati Liberi:
2
Giardino:
Comune
Arredi:
Semi Arredato
Tipo Soggiorno:
Soggiorno
Tipo Cucina:
Abitabile
Riscaldamento:
Autonomo
Tipo Riscaldam.:
Caldaia
Tipo Impianto:
Radiatori
Fonte Energetica:
Metano
Acqua Calda:
Autonoma
Raffrescamento:
No
Infissi:
Alluminio Doppio Vetro
Serramenti:
Buono
Persiana:
Personalizzato
Pavim. Giorno:
Gres Porcellanato
Pavim. Notte:
Gres Porcellanato
Pavim. Cucina:
Gres Porcellanato
Pavim. Bagno:
Gres Porcellanato
Accesso Disabili:
Nessuna Barriera
Accessori
Cancello Elettrico
Doppi Vetri
Porta Blindata
Ripostiglio
Zanzariere
Planimetrie
Mappa
Vicolo Dosso, 7 - Cesate (MI)
Cookie preference